appartement

Détails du bien

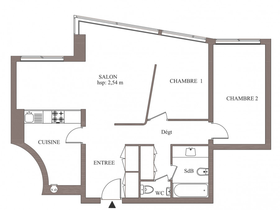
  • 74 m²

  • 3 Pièce(s)

  • 2 Chambre(s)

  • 1 sdB

582 000 € FAI
  • Référence : 10-23314
  • Ville : PARIS 15EME ARRONDISSEMENT
  • Transaction : Vente
  • Type de bien : Appartement
  • Prix FAI : 582 000 €
  • Copropriété - nombres de lots : 200
  • Surface : 74 m2
  • Nb d'étages : 32
  • Nb de pièces : 3
  • Nb de chambres : 2
  • Nb de salle bains : 1
  • Cuisine : Séparée
  • Chauffage : Urbain
  • Parking : 1

Prix Honoraires Inclus : 582 000 €
Honoraires : 5,82% TTC*
Prix Honoraires Exclus : 550 000 €
* Les honoraires d'agence seront intégralement à la charge de l'acquéreur
Descriptif du bien
BEAUGRENELLE.
Étage élevé, vue sur aérienne sur Paris, beaux volumes pour ce 3 pièces baigné de lumière, proche commerces, écoles (bilingues) et transports. Entrée, séjour, salle à manger, cuisine séparée (US possible), 2 chambres, salle de bains, wc séparés, nombreux rangements. Cave, parking. Gardiens permanents. Transports : RER C, Métros ligne 6 et 10, Bus 30-42-70-88.
Calculette
%
%

Vos mensualités

*apport calculé sur une base de 20%

Informations non contractuelles, fournies à titre indicatif
Frais de notaire
75 - Paris
Montant En % du prix du bien
Emoluments notaire %
Copies & formalités notaire 800 %
Total notaire %
Droits de mutation 5.80%
Publicité foncière 0.10%
Debours 400 %
TVA (sur part notaire) %
Total %
Informations non contractuelles, fournies à titre indicatif
Localisation
Partager ce bien

Contactez-nous
* champs obligatoires

Les avis de nos clients

  • 0
  • 0